teach men to fish
Teach Men to Fish is a 501c3 non-profit organization. They offer free hands-on vocational training in construction skills to both young men and women in Uganda. They cultivate strong personal values and model a professional work ethic so that participants have the means to create a better life for themselves and their families. Patrick Lutalo, a member of Christ Church, goes back to Uganda for three months every year to provide training for the apprentices.
In terms of ways to get involved, that depends on the focus of the project for the coming year. In the past people have donated items for Patrick to take with him to Uganda that were needed for the apprentices to use; e.g, paint brushes, paint rollers, etc. One of the most important ways congregation members can be involved is in providing financial support. Depending on the political situation, we have also hope there would be opportunity for folks to go to Uganda and become involved in some of the projects. Contact Cyndy McRae for more details cynthia.mcrae@du.edu
Contact: Robin Farris
Join Teach Men to Fish in Uganda in January, 2023!
Artist rendering of new Outpatient Surgical Center
Have you ever thought of going on a mission trip to Uganda?
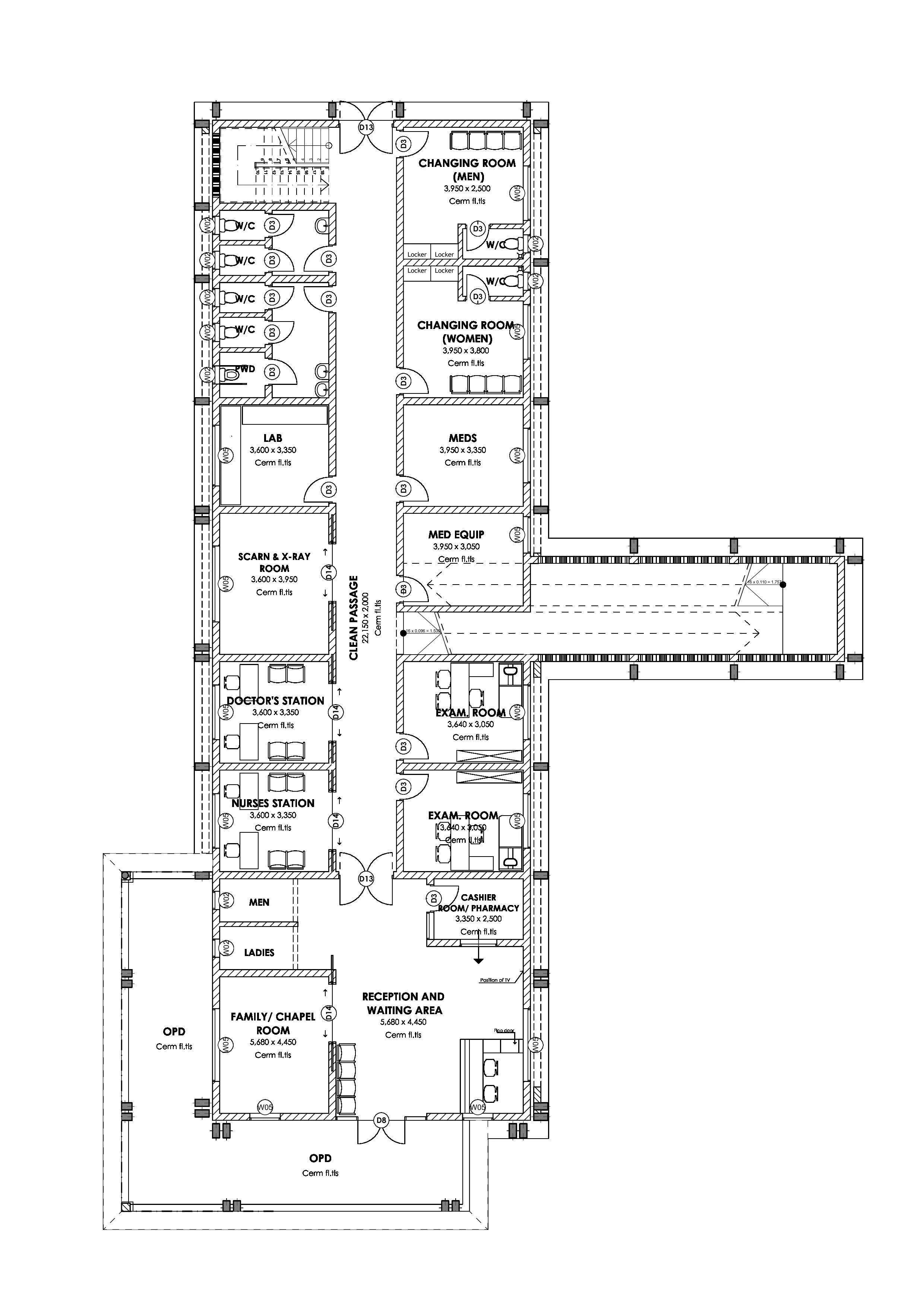
Patrick Lutalo and Teach Men to Fish would like to invite you to consider coming for a short stay in January, 2023 when the “Groundbreaking Ceremony” for the new Outpatient Surgical Center will be held. Plans are being finalized now for building this new facility in a rural part of the country that has no medical facilities for miles around. People in such areas die of wounds and ailments that could be helped easily if there was medical care close at hand. With the assistance of the apprentices trained by Patrick who have graduated from the Teach Men to Fish program and the new apprentices who have just entered the training, construction on the new Surgical Center will begin in January.
First floor plan
Upper floor plan
If you would like more information about this trip and what might be involved, please contact Patrick Lutalo at 720.278.0913 or mluwar6060@gmail.com; or Cyndy McRae at 720.556.6567 or cmcrae@du.edu.
Progress Report from Uganda, January 2022
Patrick and the apprentices are hard at work finishing the maternity facility in Naama, Uganda. You can see by the photos how much progress they have made! Patrick left for Uganda on Dec. 13 and went out to meet with the eager apprentices on Dec. 16.-- Patrick tells the story of each photo below.
In addition to the construction work you see in the photos, you can also get a glimpse of the attention that is given to creating a beautiful environment and to the comfort of those using the facility.
You can support the work of Teach Men to Fish today!
Donate online at https://www.teachmentofish.org/
Or https://samsusa.org/ (Patrick is a Missionary Bridger with SAMS, the Society of Anglican Missionaries and Senders)
Send checks to: Patrick Lutalo, Founder, Teach Men to Fish, 20466 E. Crestline Place, Centennial, CO 80015
Please pray for the safety and health of Patrick and the apprentices as they learn and work hard. We give thanks to God for each of you who partner with us.
Be sure to log onto our website blog for updates and photos of the progress that is being made!
FIND THEM ON THE WEB HERE for more info and to make a donation
Denver, CO
